espaces publics urbains
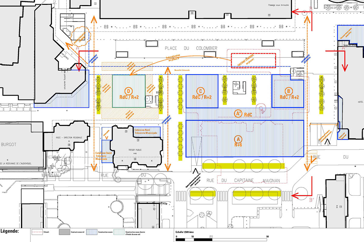
Dans le prolongement de l'aménagement de l'esplanade Charles De Gaulle, le projet redéfinit les relations de la dalle avec ses abords, favorise les relations directes, resserre l'espace public en implantant de nouveaux commerces assurant des continuités commerciales entre le Centre commercial Colombia et la Ville. Au sol, il recadre l'espace de la place autour d'un tapis central en bois ponctué de fontaines.
Maître d'ouvrage : Ville de Rennes – DAU/DIE-COP-MOE
Conseil/Conception : Dominique BRARD architecte conseil
Maîtrise d'oeuvre : Ville de Rennes, AMCO BET VRD
Programme : Requalification de la place, redéfinition des limites
Photographies et dessins : ATELIER DE L'ILE
Projet suivant
Place LaënnecQuimper - 2000